Ingatlan
Kiadó iroda, rendelő - Diana utca 10/B
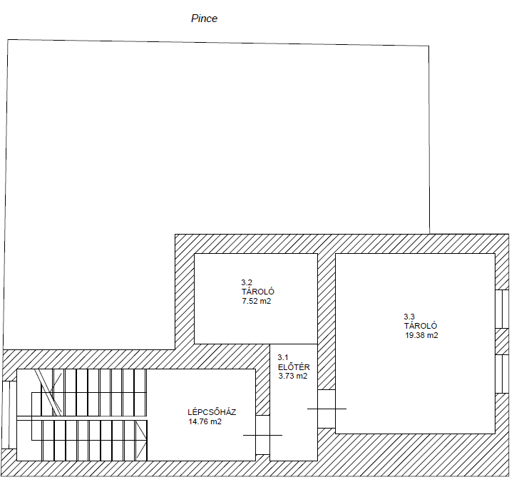
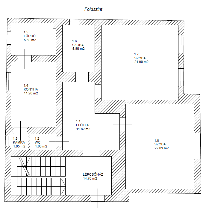
A Budapest, XII., Diana u. 10/B. szám alatt hosszú távra kiadó egy kétszintes, szintenként 80 m2 hasznos alapterülettel rendelkező, teljes felújítást igénylő épület.Az ingatlan jól megközelíthető mind gépjárművel, mind pedig tömegközlekedéssel. Adottságainál fogva kiválóan alkalmas építész, ügyvédi vagy egyéb irodának, illetve egészségügyi, gyógyászati tevékenység végzésére.
Az épület felújítandó állapotban kerül bérbeadásra. A teljes kivitelezés a bérlő feladata, melynek költsége a bérleti díjban elszámolásra kerül.
Bérleti díj: 1.320.800,-Ft + 27% áfa / hó.
Bővebb információ a "Részletek" gombra kattintva, a "Kapcsolat" menüpontban kérhető.



